近年來,隨著中國航空航天事業的快速發展,各種新型緊固件也不斷地被研制和應用,其中典型代表就是具有高強度、低密度等優勢的鈦合金緊固件[1-4]。TB8鈦合金是一種超高強度亞穩定β鈦合金,因其具有良好的抗氧化性能、耐腐蝕性能和綜合力學性能而廣泛應用于航空航天領域[5-6]。由于TB8鈦合金低溫變形抗力較大,對于該材質的零件一般都需要熱成形,但是目前對于該材料熱鐓成形的相關研究較少,因此需要對TB8鈦合金高溫下的熱變形行為進行研究,分析其不同變形溫度和應變速率下的流變應力曲線,然后對其熱鐓成形性能進行研究,以制定合理的熱鐓工藝,降低產品開發成本[7-8]。

本文以某型機用TB8鈦合金十二角螺栓為研究對象,首先利用Gleeble-1500D熱模擬試驗機對不同溫度和應變速率下TB8鈦合金試樣進行了等溫壓縮實驗,得到其不同變形條件下的真實應力-應變曲線并分析其熱變形行為。然后將實驗得到的數據導入到Deform-3D有限元模擬軟件中對TB8鈦合金十二角螺栓熱鐓工藝進行有限元模擬,對熱鐓成形關鍵工藝參數建立了正交實驗優化方案,最后根據優化得到的熱鐓工藝參數,結合實際生產設備設計相應模具,并進行了熱鐓工藝試驗,試驗結果表明,數值模擬結果和實際生產結果基本一致,試驗得到的TB8鈦合金十二角螺栓經后續機械加工后沒有出現缺陷,說明本文提出的熱鐓工藝是可行的,對TB8鈦合金十二角螺栓及其他類似零件的實際生產具有一定的指導意義。
1、高溫壓縮實驗及結果分析
1.1高溫壓縮實驗
選用某廠家提供的TB8鈦合金棒材,其化學成分見表1。按照要求利用線切割取樣,并加工成Φ8mm×12mm的標準壓縮試樣,如圖1所示為壓縮試樣制備簡圖。


利用Gleeble-1500D熱模擬實驗機上壓縮對試樣進行單道次等溫壓縮實驗,實驗方案見表2,工藝曲線如圖2所示。壓縮后立刻將試樣放置水中淬火,以保留其高溫變形后的組織[9-10]。


1.2高溫壓縮實驗結果分析
如圖3所示為高溫壓縮實驗得到的不同溫度及應變速率下TB8鈦合金的真實應力-應變曲線。從圖中可以看出,曲線分為3個階段,初始階段,隨著應變的增加,真應力迅速增大到最大值,中間階段,隨著應變的增加,真應力稍微有所降低,最后階段,隨著應變的增加,真應力趨于穩定。其主要原因是在初始階段,隨著變形程度的增加,TB8鈦合金內部組織的位錯密度迅速增加和累積,產生強烈的加工硬化,因此真應力迅速增大。在中間階段,隨著變形程度的進一步增加,TB8鈦合金內部組織發生動態再結晶,動態再結晶的軟化作用使得真應力稍微有所降低,在最后階段,TB8鈦合金內部組織動態再結晶的軟化作用和加工硬化作用相當,因此,真應力呈現穩定狀態。此外,從圖中還能看出TB8鈦合金的真實應力-應變曲線呈現波浪狀的變化特征,且在應變速率為0.1s—1時最明顯,這主要是因為變形過程中,TB8鈦合金內部組織動態再結晶的軟化作用和加工硬化作用相互占據主導地位所致。

2、熱鐓成形工藝方案制定
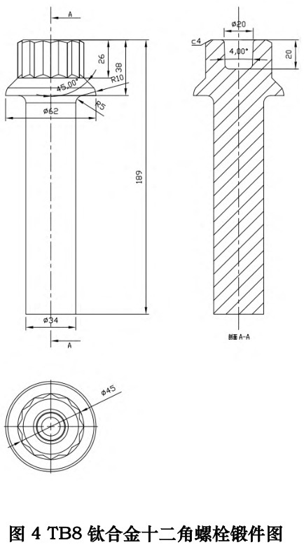
首先根據某型機用TB8鈦合金十二角螺栓零件圖設計相應的鍛件圖,為了減少后續機械加工余量及工時,將頭部內孔也一并鐓制成形,其鍛件圖如圖4所示,為保證鍛件的金屬流線的完整及鍛件的質量,主要采用如下熱鐓工藝:(1)首先根據等體積原則,確定原始坯料的下料規格及尺寸,考慮到熱損失,將坯料規格設計為φ34mm×225mm;(2)計算變形部分的長度,確定加熱區長度,考慮到加熱溫度梯度效應,將加熱區長度設計為76mm,并利用感應線圈進行加熱;(3)將加熱完成后的坯料放置于熱鐓模具中進行鐓制成形,將十二角頭及頭部內孔一次成形。最后從熱鐓模具中取出TB8鈦合金鍛件并進行尺寸及質量檢測,尺寸在設計范圍內后觀察是否存在裂紋、折疊等鍛造缺陷。

3、正交實驗方案及有限元模擬仿真
3.1正交實驗方案設計
根據實際生產經驗,一般影響螺栓熱鐓質量的工藝參數主要有:鐓制溫度T、鐓制速度V、模具與坯料的摩擦系數μ。因此將正交實驗的變量因素設為T、V、μ。根據高溫壓縮實驗得到的相應數據,TB8鈦合金在溫度850℃時的真應力較大,因此為了保證效率,不考慮將850℃設置為鐓制溫度,將坯料的鐓制溫度設置為900、950、1000℃;將鐓制速度設置為150、250、300mm/s;將模具與坯料的摩擦系數設置為0.1、0.3、0.6。此設計按L9正交表進行9次實驗,實驗方案見表3。

3.2有限元模擬仿真模型的建立及模擬參數設定
首先根據上述制定的TB8鈦合金十二角螺栓的熱鐓工藝,繪制相應的模具三維模型,并在SolidWorks軟件中裝配[11-12],如圖5所示為TB8鈦合金十二角螺栓熱鐓有限元仿真模型,主要有上模、坯料、凹模和頂桿組成,在裝配體中定義相互之間的接觸關系,為了模擬結果的準確性,將模型另存為“STL”格式,并在品質選項中選擇“精細”。并將“STL”格式的模型分別導入有限元仿真軟件Deform-3D中。然后將高溫壓縮實驗得到的TB8鈦合金材料在不同變形溫度和應變速率下的真實應力-應變曲線導入到Deform-3D材料庫中,選用該材料數據進行模擬仿真,更加接近實際生產。

最后將模具設置為剛性,對坯料采用四面體網格劃分,網格數量為80000個。鐓制溫度T、鐓制速度V、模具與坯料的摩擦系數μ分別按照正交實驗方案進行設定。
3.3有限元模擬仿真結果分析
3.3.1最大鐓制力分析
對于TB8鈦合金螺栓熱鐓成形工藝,其鐓制力的大小直接決定設備噸位的選型,也是判斷現有設備條件能否實現該工藝的重要依據,決定著工藝開發的成敗。表2為正交實驗得到的各工藝參數下的最大鐓制力,從表4可以看出,鐓制溫度對最大鐓制力的影響最大,隨著溫度升高,最大鐓制力逐漸減小,主要是因為溫度越高,位錯活動能力越強,位錯發生滑移或攀移,使得位錯密度降低,材料的變形抗力也隨著降低。其次是鐓制速度對最大鐓制力的影響,隨著鐓制速度的增加,最大鐓制力逐漸減小,這主要是因為隨著鐓制速度的增加,材料內部組織動態再結晶的時間縮短,動態再結晶的軟化作用抵消了加工硬化,因此材料的變形抗力有所降低。摩擦系數對最大鐓制力的影響不是很大,但是良好的潤滑會提高金屬材料的流動性,對模具壽命有一定的影響。但是對于熱鐓成形過程來說,摩擦系數0.3較容易實現。經過分析,模擬得到優化的工藝參數組合為鐓制溫度為1000℃、鐓制速度為300mm/s,摩擦系數為0.3。如圖6所示為實驗序號為7、8、9的條件下TB8鈦合金十二角螺栓熱鐓過程中上沖頭的載荷-行程曲線。從圖中可以看出,隨著變形程度的增加,上沖頭載荷先緩慢增加,最后急劇增加到最大值,這主要是由于剛開始變形階段,金屬材料與模具之間的空間較大,金屬流動阻力較小,隨著金屬逐漸填滿模具型腔,封閉空間內金屬流動阻力大大增加,因此載荷急劇增大。

3.3.2等效應力分析
圖7為鐓制溫度1000℃、鐓制速度300mm/s,摩擦系數0.3時TB8鈦合金十二角螺栓熱鐓成形過程中坯料的等效應力場分布。從圖中可以看出,不同成形階段,等效應力的分布不同,在初始變形階段,坯料在上沖頭壓力的作用下,首先成形端部內孔,并使得坯料發生鐓粗變形,如圖7a所示,此時等效應力最大值出現在內孔與上沖頭接觸的區域。隨著上沖頭繼續運動,內孔成形逐漸結束,此時金屬與沖頭最上端逐漸接觸,沖頭繼續運動,坯料主要發生鐓粗變形,此時等效應力的最大值出現在螺栓上端與模具接觸的地方,如圖7b所示。隨著內孔成結束,沖頭再繼續運動的主要目的是成形法蘭面以及十二角頭,在此階段金屬流動規律較復雜且流動阻力較大,最后沖頭運動到下端與凹模承壓面接觸,成形過程結束,此時等效應力最大值出現在法蘭面邊角處,如圖7c所示。

3.3.3損傷值分布
金屬材料在熱變形過程中,內部開始出現裂紋萌生時通過現有的檢測儀器很難在線檢測,因此通過產品設計來規避容易出現裂紋的部位是現在常用的方法之一,通過Deform-3D后處理中損傷值的大小及分布,可以預測裂紋產生的區域,然后再通過成形工藝來降低該區域的損傷值,從而提高產品開發的成功率及周期。如圖8所示為TB8鈦合金十二角螺栓熱鐓成形過程中損傷值的分布圖,從圖中可以看出,變形過程中隨著變形程度的增加,最大損傷值逐漸增大,通過分析發現,最大損傷值出現的位置基本是在頭部內孔處,說明該區域是容易產生裂紋的部位,在后續工藝及模具設計時需要重點考慮,從而提高鍛件產品表面質量。

3.3.4模具應力分布
由于TB8十二角螺栓熱鐓成形過程中金屬材料的流動會對模具產生劇烈的摩擦和較大的接觸壓力,當模具應力超過模具材料在該溫度下的許用應力時,模具就會發生斷裂失效,從而導致工藝開發的失敗,因此需要首先對成形過程中與坯料接觸緊密的相關模具的應力場進行分析。具體步驟為:以上沖頭模具應力分析為例,首先在進入前處理,將其他模具刪除,定義上沖頭為“elastic”,劃分網格為50000個,選用熱作模具鋼H13為模具材料,然后設置邊界條件,最后插入模具受力,如圖9所示。運算完成后在后處理結果中查看上沖頭的應力分布,如圖10所示,最大應力為1010MPa。用同樣的方法計算凹模的應力分布,如圖11所示為成形過程中凹模受力情況,圖12所示為凹模應力分布,最大應力為1050MPa。經過分析,上沖頭和凹模的最大應力值均小于H13在該溫度下的許用應力,不會對模具產生破壞作用而導致模具失效,為后續模具設計提供理論依據。

4、熱鐓成形工藝試驗
根據有限元模擬得到的TB8鈦合金十二角螺栓熱鐓成形工藝參數,選擇400t高速精密壓力機進行相應的模具設計及加工,然后進行模具調試,最后完成相應的熱鐓成形工藝試驗,如圖13所示為試驗用高速精密壓力機實物圖。工藝試驗得到的鍛件經過檢測,尺寸符合設計要求,經過后續機械加工后未出現裂紋、折疊等鍛造缺陷,滿足使用要求,如圖14所示為機械加工后的TB8鈦合金十二角螺栓實物圖。


5、結語
(1)通過高溫壓縮實驗,得到不同變形條件下TB8鈦合金的真實應力-應變曲線,為熱鐓工藝有限元模擬提供了數據,使得模擬更加準確和接近實際生產。
(2)通過正交實驗優化方案及有限元模擬仿真,得到TB8十二角螺栓熱鐓成形工藝參數為:鐓制溫度1000℃、鐓制速度300mm/s,摩擦系數0.3。
(3)工藝試驗得到的TB8十二角螺栓鍛件經過機械加工,沒有發現裂紋、折疊等鍛造缺陷,符合設計要求,說明本文制定的熱鐓工藝是可行的,可對該類零件的實際熱鐓生產提供指導。
參考文獻
[1]李萍,張悅,黃曉雨,等.變形溫度對TB8鈦合金梯度擠壓組織與性能的影響[J].稀有金屬與硬質合金,2023,51(3):70-76.
[2]趙永慶,奚正平,曲恒磊.我國航空用鈦合金材料研究現狀[J],航空材料學報,2003,23:215-219.
[3]李明怡.航空用鈦合金結構材料[J].世界有色金屬,2000(6):17-20.
[4]商國強,朱知壽,常輝,等.超高強度鈦合金研究進展[J].稀有金屬,2011(2):286-291.
[5]王明主,董洪波,鄒忠波,等.TB8鈦合金超塑性拉伸變形流變行為與本構方程[J].特種鑄造及有色合金,2016,36(1):103-106.
[6]趙聰,石曉輝,曹聰,等.固溶冷卻方式和時效溫度對TB8鈦合金組織和拉伸性能的影響[J].熱加工工藝,2022(14):51-55.
[7]許永春,李祥軍,李旭健,等.TB8鈦合金高鎖螺栓安裝斷裂原因[J].理化檢驗:物理分冊,2022,58(10):67-70.
[8]王浩宇,趙薇,董建新,等.基于Deform-3D和正交實驗法的GH4169合金渦輪盤熱模鍛工藝優化[J].鍛壓技術,2013,38(5):13-19.
[9]翁蕓嫻,秦培亮,趙亞平.基于正交試驗六角螺栓溫鐓成形模具磨損分析及優化[J].鍛壓技術,2019,44(9):122-126.
[10]段繼平,唐湘林,盛俊英,等.熱擠壓態FGH95合金熱變形特性[J].粉末冶金技術,2024,42(1):36-44.
[11]王超,任永海,韓森霖,等.Inconel718高溫合金等溫壓縮過程的組織演變及溫度場模擬[J].金屬熱處理,2023,48(5):151-157.
[12]高國杰,馬輝,秦偉超,等.工藝參數對管端加厚成形影響的數值模擬研究[J].重型機械,2023(1):60-65.
第一作者:孫曉軍,男,1983年生,研究員,研究方向為航天領域高端緊固件研制及工藝技術研究。
E-mail:15937614721@139.com
通信作者:張亞龍,男,1990年生,講師,研究方向為航空基礎件疲勞延壽技術。E-mail:
zhangyalong@zua.edu.cn
相關鏈接
- 2024-08-27 熱處理對緊固件用TB8鈦合金棒材力學性能的影響
- 2024-02-09 固溶溫度對航空航天結構材料用TB8鈦合金組織及性能的影響

